32203:新築戸建 泉町第三 2号棟
| 価格 | 3,280万円 |
|---|---|
| 所在地 | 坂戸市泉町2丁目 |
| 交通 | 東武東上線 坂戸駅まで 徒歩16分 東武東上線 北坂戸駅まで 徒歩13分 |
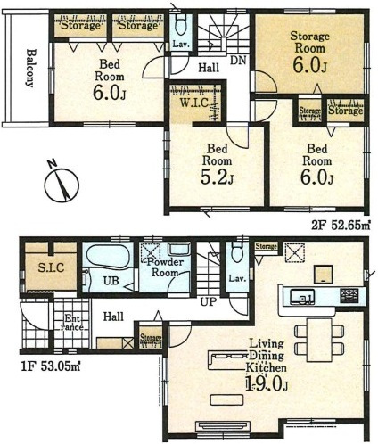
| 間取 | 3SLDK |
| 土地面積 | 116.05m²(35.1坪) |
| 建物面積 | 105.7m²(31.97坪) |
| 私道面積 | - |
| 築年月 | 2026/04 |
| 学区 | 小学校区:桜小学校 820m 中学校区:桜中学校 1,010m |
| 建物構造 | 木造 |
|---|---|
| 階建 | 地上2階建 |
| 建ぺい率 | 60% |
| 容積率 | 200% |
| 地目 | 宅地 |
| 用途地域 | 第一種住居地域 |
| 土地権利 | 所有権 |
| 取引態様 | 仲介 |
| 引渡時期 | 2026年04月下旬 |
| セットバック | |
|---|---|
| 接道 | 北西 6m(幅員) 公道 |
| 諸費用 | |
| 他法条例 | |
| 建築確認番号 | 第25UDI1W建10840号 |
| 取引条件有効期限 | 令和08年3月27日 |
特色
駐車場、公営水道、公共本下水、都市ガス、ハザードマップ:0.5m~3.0m未満
コメント
周辺に商業施設充実、生活に便利!本下水・都市ガス!2台駐車可(車種による)
周辺地図
位置情報に関するご注意:現在位置情報は精査中の為、正確ではない場合があります。あくまで参考程度の情報となります。


















