32223:中古戸建 横沼(34条11号)
| 価格 | 2,650万円 |
|---|---|
| 所在地 | 坂戸市大字横沼 |
| 交通 | 東武東上線 若葉駅まで バス14分 停歩16分 東武東上線 若葉駅まで 徒歩57分 |
| 最寄バス停 | 東坂戸駐在所前 停歩16分 |
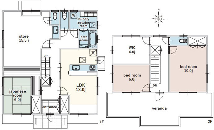
| 間取 | 4SLDK |
| 土地面積 | 336.9m²(101.91坪) |
| 建物面積 | 140.77m²(42.58坪) |
| 私道面積 | - |
| 築年月 | 2008/07 |
| 学区 | 小学校区:三芳野小学校 400m 中学校区:住吉中学校 1,630m |
| 建物構造 | 木造 |
|---|---|
| 階建 | 地上2階建 |
| 建ぺい率 | 60% |
| 容積率 | 200% |
| 地目 | 宅地 |
| 用途地域 | 無指定 |
| 土地権利 | 所有権 |
| 取引態様 | 仲介 |
| 引渡時期 | 相談 |
| セットバック | |
|---|---|
| 接道 | 北 10m(幅員) 公道 西 8.2m(幅員) 公道 |
| 諸費用 | |
| 他法条例 | |
| 建築確認番号 | |
| 取引条件有効期限 | 令和08年3月27日 |
特色
駐車場、角地、公営水道、浄化槽、集中プロパンガス、横沼前方自治会、ハザードマップ:0.5m~3.0m未満
コメント
店舗付き住宅!敷地広々101坪!
周辺地図
位置情報に関するご注意:現在位置情報は精査中の為、正確ではない場合があります。あくまで参考程度の情報となります。













